« zurück zur Übersicht
Doppelcontainer mit WC und Kleinküche mieten leihen

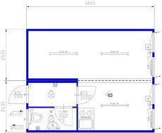
Doppelcontainer mit WC und Kleinküche 20'

2 E-Konvektoren 2 kw
1 Stahlaußentüre, nach außen aufgehend, 875 * 2000 mm
4 PVC-Bürofenster mit Dreh-/Kippbeschlag inkl. Rolladen
1 WC mit Handwashbecken, Spiegel und Ablage
1 Kleinküche mit Kühlschrank, Spüle, 5 l Untertischspeicher, 2 Kochplatten

Berechnungszeitraum monatlich
Mindestmietdauer 1 Monat

Kontaktanfrage

Mietverbund Objekt-ID: 116452

Öffnungszeiten: Montag-Donnerstag: 6:30-16:30 Uhr Freitag: 6:30-13:00 Uhr Samstag: 7:30-12:00 Uhr

Container
Abmessung LxBxH (mm) 6055*4880*H
Preise
  • auf Anfrage
Kontakt mit dem Anbieter aufnehmen
1. Anbieter auswählen
Geith & Niggl GmbH & Co. KG Andrea Mendel Brodersenstraße 36 81929 München
Felder die mit * gekennzeichnet sind, sind Pflichtfelder.
2. Meine Angaben
/
/
3. Voraussichtliche Mietdauer

Anbieter / Standorte